Ruční kladkostroj KITO typ CB015 nosnost 1500kg
Ruční řetězové kladkostroje série CB japonského výrobce KITO jsou mimořádně odolné kladkostroje určené i pro nejtěžší pracovní podmínky. Díky prémiovým komponentům nabízí tento kladkostroj vysokou účinnost a dlouhou životnost.
V souladu se směrnicí 2006/42/ES a technickými normami DIN EN 13157 a EN ISO 12100. Certifikát DGUV-GS. Poniklovaný řetěz zdvihu s pevností 1000N/mm² dle EN 818-7.
Zdvih ovládaný řetízkem.
Nosnost 0,5t - 50t.
Hmotnost netto 10kg - 640kg (se standardní délkou řetězu)
Základní informace:
- v řadě CB - 14 modelů, nosnost 500kg - 50 000kg
- vhodné i do nejtěžších pracovních podmínek
- vysoká odolnost a spolehlivost
- dokonalá ochrana proti vnějšímu poškození - skříň převodovky odolná vůči nárazům, přesný odlitek z vysokopevnostní oceli a zesílený kryt kladky ovládacího řetězu spolehlivě chrání obě strany kladkostroje před mechanickým poškozením, proražením atd.,
- dvojitý kryt brzdového systému - spolehlivě chrání před průnikem cizích těles, prachu, dešťové vody atd. do brzdového mechanismu kladkostroje,
- brzdový systém se zdvojenými pružinami - spolehlivý, bezazbestový, suchý brzdový systém s garancí správné činnosti i v případě poškození jedné z pružin západky,
- háky kladkostroje - oba háky kladkostroje z legované, tepelně zušlechtěné oceli s dostatečnými rozměry a bezpečnostní pojistkou. Spojení třmenu spodního háku s řetězem chráněné proti mechanickému poškození
- kuličková ložiska - vysoce kvalitní ložiska pro minimalizaci mechanických ztrát, hladký a plynulý chod obou řetězů,
- kladka řetězu zdvihu s vodícími kladkami - zajišťuje hladký a lehký chod řetězu zdvihu,
- mechanická převodovka s přesným, optimalizovaným převodovým soukolím - kompaktní převodovka s dlouhou životností a minimalizovanými mechanickými ztrátami, navržená na základě dlouhodobých zkušeností.
- vysoce výkonná přesná převodovka TA zajišťuje, že síla, která musí být použita pro zvedání břemene s ručním řetězem, je udržována co nejnižší.
- nastavitelná zarážka - zasunutí čepu zarážky do vybraného článku řetězu zdvihu spolehlivě zabraňuje sjetí spodního háku řetězu zdvihu pod zvolenou úroveň, ev. vysmeknutí řetězu zdvihu, z mechanismu kladkostroje
- k dispozici je také omezovač přetížení, který zvyšuje stupeň bezpečnosti uživatele pomocí integrovaného mechanismu spojky. Pokud je kladkostroj nadměrně přetížení, spojka prokluzuje. Břemeno zůstává nepohyblivé a nemůže být zvedáno bez ohledu na jakoukoliv další aplikovanou ruční sílu
- další volitelné příslušenství:
- ocelové nebo textilní řetězové kontejnery, omezovač přetížení, prodloužení hřídele kladky, ovládací řetězy, pojezdy TSP, TS
- nerezový řetěz na přání.
- z řady CB standardně nabízíme velikosti: CB005 500kg, CB010 1000kg a CB015 1500kg. Další velikosti na objednávku.
| Model | Nosnost | Délka zdvihu |
Délka ovládacího |
Ovládací síla při max. nosnosti | Posun ovl. řetězu na 1 m zdvihu | Řetěz zdvihu průměr × délka článku |
Počet smyček |
Testovací zátěž |
Hmotnost netto |
Hmotnost brutto |
Přidaná hmotnost na 1 m zdvihu
|
| --- | kg | m | m | N | m | mm | --- | T | kg | kg | kg |
| CB005 | 500 | 3,0 | 3,0 | 235 | 25 | 5,0 × 15,1 | 1 | 0,75 | 11,0 | 11,5 | 1,5 |
| CB010 | 1000 | 3,0 | 3,0 | 284 | 43 | 6,3 × 19,1 | 1 | 1,50 | 12,5 | 13,0 | 1,8 |
| CB015 | 1500 | 3,0 | 3,0 | 343 | 57 | 7,1 × 21,2 | 1 | 2,40 | 15,5 | 16,0 | 2,1 |
| CB020 | 2000 | 3,0 | 3,0 | 353 | 70 | 8,0 × 24,2 | 1 | 3,00 | 20,0 | 21,0 | 2,3 |
| CB025 | 2500 | 3,0 | 3,0 | 323 | 99 | 9,0 × 27,2 | 1 | 3,80 | 27,0 | 28,0 | 2,7 |
| CB030 | 3000 | 3,0 | 3,0 | 353 | 114 | 7,1 × 21,2 | 2 | 4,80 | 24,0 | 26,0 | 3,2 |
| CB050 | 5000 | 3,0 | 3,5 | 333 | 198 | 9,0 × 27,2 | 2 | 7,50 | 41,0 | 43,0 | 4,4 |
| CB075 | 7500 | 3,5 | 4,0 | 343 | 297 | 9,0 × 27,2 | 3 | 9,50 | 63,0 | 66,0 | 6,2 |
| CB100 | 10000 | 3,5 | 4,0 | 353 | 396 | 9,0 × 27,2 | 4 | 12,50 | 83,0 | 91,0 | 7,9 |
| CB150 | 15000 | 3,5 | 4,5 | 363 | 594 | 9,0 × 27,2 | 6 | 20,00 | 155,0 | 165,0 | 11,4 |
| CB200 | 20000 | 3,5 | 4,5 | 2 × 353 | 2 × 396 | 9,0 × 27,2 | 8 | 25,00 | 235,0 | 305,0 | 15,8 |
| CB300 | 30000 | 3,5 | 4,5 | 2 × 421 | 2 × 495 | 9,0 × 27,2 | 10 | 40,00 | 310,0 | 400,0 | 19,2 |
| CB400 | 40000 | 3,5 | 4,5 | 2 × 421 | 2 × 693 | 9,0 × 27,2 | 14 | 50,00 | 480,0 | 630,0 | 26,2 |
| CB500 | 50000 | 3,5 | 4,5 | 2 × 480 | 2 × 792 | 9,0 × 27,2 | 16 | 62,50 | 640,0 | 790,0 | 29,7 |
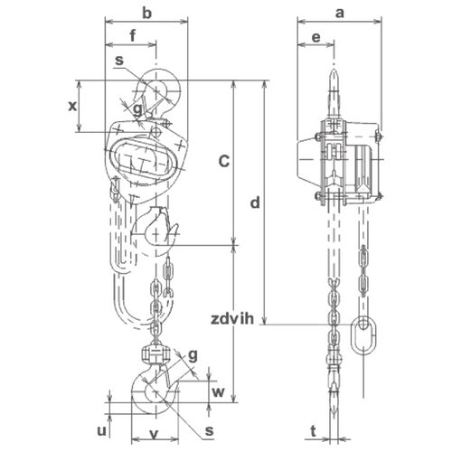
Rozměry v mm - výkres pro vel. do 2,5t:

| Model | C | a | b | d | e | f | g | s | t | u | v | w | x |
| --- | mm | mm | mm | mm | mm | mm | mm | mm | mm | mm | mm | mm | mm |
| CB005 | 285 | 158 | 161 | 2500 | 69 | 99 | 27,0 | 35,5 | 12,1 | 17,0 | 77,0 | 35,0 | 89 |
| CB010 | 295 | 162 | 161 | 2500 | 71 | 99 | 29,0 | 42,5 | 16,0 | 21,8 | 93,0 | 41,0 | 101 |
| CB015 | 350 | 171 | 182 | 2500 | 78 | 112 | 34,0 | 47,5 | 19,5 | 26,5 | 106,0 | 47,0 | 119 |
| CB020 | 375 | 182 | 202 | 3000 | 87 | 125 | 36,0 | 50,0 | 21,8 | 30,0 | 116,0 | 49,0 | 124 |
| CB025 | 420 | 192 | 233 | 3000 | 91 | 143 | 40,0 | 53,0 | 24,3 | 33,5 | 126,0 | 53,0 | 136 |
| CB030 | 510 | 171 | 235 | 3100 | 78 | 162 | 42,5 | 56,0 | 27,2 | 37,5 | 138,0 | 57,0 | 148 |
| CB050 | 600 | 192 | 282 | 3600 | 91 | 194 | 46,5 | 63,0 | 34,5 | 47,5 | 161,0 | 67,5 | 172 |
| CB075 | 770 | 192 | 373 | 4200 | 91 | 253 | 72,5 | 85,0 | 47,5 | 63,0 | 231,0 | 97,5 | 275 |
| CB100 | 760 | 192 | 438 | 4200 | 111 | 308 | 72,5 | 85,0 | 47,5 | 63,0 | 231,0 | 97,5 | 295 |
| CB150 | 1020 | 268 | 492 | 4700 | 119 | 337 | 80,0 | 100,0 | 60,0 | 80,0 | 275,0 | 110,0 | 320 |
| CB200 | 1180 | 374 | 746 | 4800 | 187 | 373 | 81,0 | 110,0 | 67,0 | 90,0 | 301,0 | 125,0 | 351 |
| CB300 | 1300 | 404 | 746 | 4800 | 202 | 373 | 103,0 | 125,0 | 85,0 | 112,0 | 367,0 | 143,0 | 400 |
| CB400 | 1480 | 502 | 760 | 4900 | 251 | 380 | 96,0 | 145,0 | 123,0 | 133,0 | 412,5 | 182,5 | 445 |
| CB500 | 1560 | 544 | 796 | 4900 | 272 | 398 | 100,0 | 165,0 | 135,0 | 155,0 | 447,5 | 202,5 | 467 |


Původní návod k použití, eng
Certifikat_DGUV_GS_KITO_CB_kladkostroj.pdf
KITO_CB_serie_katalogovy_list_eng.pdf
Návod k použití, cz