Ruční lanový naviják BRANO LN 0,5t a 1,0t , bez lana
Navijáky BRANO jsou v souladu s technickými normami EN 13157+A1, ČSN EN ISO 12100 a evropskou směrnicí 2006/42/ES o strojních zařízení.
Lanové navijáky Brano nabízíme ve 2 variantách nosnosti 0,5t a 1t.
Použití:
K ručnímu zvedání a tažení břemen:
- jako obslužné zdvihadlo pro montážní a údržbářské práce v technologických zařízeních všeho druhu
- pro nakládání osobních automobilů nebo lodí na přívěsy
- pro manipulační činnosti na malých lodích (napínání plachet apod.)
- možnost používání také v prostředí s nebezpečím výbuchu – platí pouze pro varianty s označením NEXP – označení “výbušnosti” výrobku – I M2; II 2G T5 (skupina zařízení I, kategorie M2; skupina zařízení II, kategorie 2G, teplotní třída T5)
Vlastnosti:
- jednoduchá lehká konstrukce
- snadná obsluha
- antikorozní povrchová úprava galvanickým pozinkováním – pro standardní prostředí
- antikorozní povrchnová úprava galvanickým pokovením “ZinekNikl”- pro korozně náročnější prostředí
- lano s hákem pro standardní prostředí je galvanicky zinkované
- lano s hákem pro korozně náročnější prostředí můžeme nabídnout v celonerezovém provedení
- použití navijáku v nestandardním nebo extrémním prostředí konzultujte s výrobcem
- připraveno pro montáž na konstrukci
- minimální nároky na údržbu
Dodáváme ve dvou verzích: s lanem nebo bez lana.

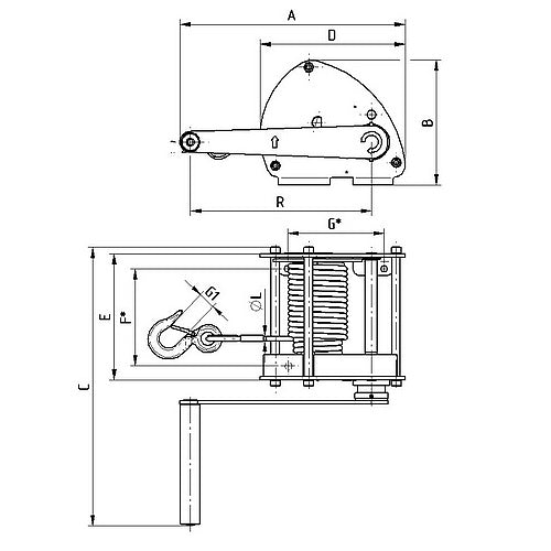
| Typ | Nosnost | A | B | C | D | E | F* | G* | G1 | L | R | Lano Ø | Zdvih | Převodový poměr | Ovládací síla na klice max. | Hmotnost navijáku s lanem |
| --- | t | mm | mm | mm | mm | mm | mm | mm | mm | mm | mm | mm | m | --- | N | kg |
| LN | 0,5 | 264 | 167 | 344 | 193 | 186 | 144 | 115 | 19 | 5 | 200 | 5 | 10 | 1:08 | 250 | 9,5 |
| LN | 1,0 | 373 | 207 | 460 | 240 | 209 | 160 | 160 | 19 | 8 | 300 | 8 | 10 | 1:06 | 320 | 15,2 |
* rozteče otvorů pro ukotvení lanového navijáku
Ø kotevních otvorů – LN/0,5t – 9mm, LN/1t – 11mm



Návod k použití, cz