Pavlínek s.r.o. - Profesionál přes zvedání, upínání a manipulaci s nákladem

Otočný jeřáb SD900 nosnost 900/600kg, dosah až 2m, GEBUWIN

GEBUWIN  |  SKU: 67GB0004-0001
Typ, nosnost, rozsah, naviják
60 888,00 Kč bez DPH
Dopravu Vám vypočítáme před odesláním objednávky v pokladně.

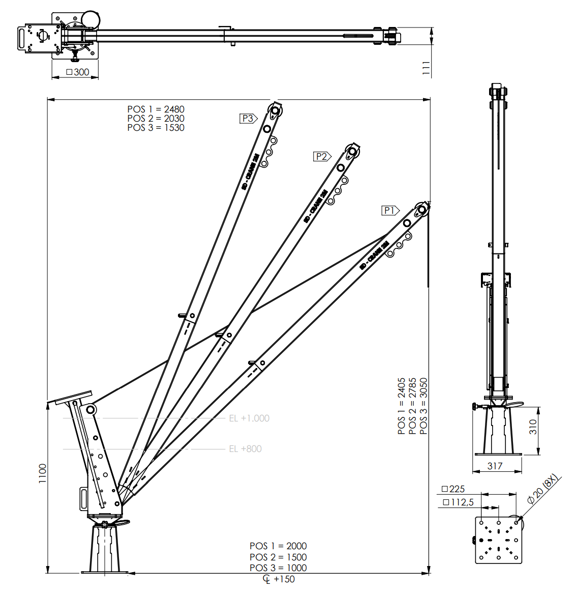
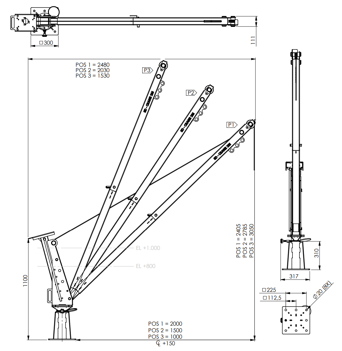
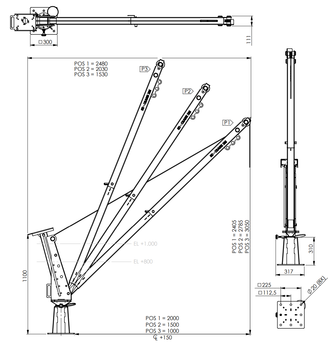
Otočný jeřáb SD900 - lakovaná ocel

Robustní otočný jeřáb s nosností až 900 kg, ideální pro manipulaci s břemeny v průmyslovém prostředí. Díky otočné konstrukci 360° umožňuje flexibilní práci v omezeném prostoru s maximální vykládkou až 2 metry.

Klíčové vlastnosti

  • Nosnost: 900(700) kg při vykládce 1 m / 600 kg při vykládce 2 m
  • Otočný dosah: 360° pro maximální flexibilitu
  • Maximální vykládka: 2 metry
  • Robustní lakovaná ocelová konstrukce
  • Vhodný pro průmyslové aplikace
  • Snadná instalace a údržba
  • Kompatibilní s elektrickými navijáky a kladkostroji

Technické specifikace

Parametr Hodnota pro TL1500  Hodnoty pro CW700 
Typ SD900 SD900
Nosnost při vykládce 1 m (1. vrstva) 900 kg  700 kg
Nosnost při vykládce 1,5 m (1. vrstva) 800 kg  700 kg
Nosnost při vykládce 2 m (1. vrstva) 600 kg   600 kg
Rychlost zdvihu 1,2 m/min  2,2 m/min
Průměr lana Ø 8 mm 6 mm
Uložení lana horní vrstva 33 m  40 m
Hmotnost bez navijáku 49 kg  49 kg
Hmotnost navijáku 27 kg  14 kg
Materiál Lakovaná ocel Lakovaná ocel
Otočný rozsah 360° 360°
Maximální vykládka 2 m 2 m

Aplikace

  • Průmyslová výroba a montáž
  • Sklady a logistická centra
  • Stavebnictví
  • Údržba a servis
  • Manipulace s břemeny v omezeném prostoru
  • Nakládka a vykládka materiálu

Výhody

  • Vysoká nosnost až 900 kg při kratší vykládce
  • Plynulá otočnost 360° pro snadnou manipulaci
  • Kompaktní konstrukce šetřící prostor
  • Robustní provedení pro dlouhou životnost
  • Kompatibilní s různými typy zdvihacích zařízení
  • Snadná instalace na podlahu nebo základnu

Bezpečnost

  • Dodržujte maximální povolenou nosnost podle vykládky
  • Pravidelně kontrolujte stav lana a všech komponentů
  • Používejte pouze certifikované zdvihací příslušenství
  • Zajistěte řádnou montáž a ukotvení jeřábu
GEBUWIN

Otočný jeřáb SD900 nosnost 900/600kg, dosah až 2m, GEBUWIN

Od 60 888,00 Kč bez DPH

Otočný jeřáb SD900 - lakovaná ocel

Robustní otočný jeřáb s nosností až 900 kg, ideální pro manipulaci s břemeny v průmyslovém prostředí. Díky otočné konstrukci 360° umožňuje flexibilní práci v omezeném prostoru s maximální vykládkou až 2 metry.

Klíčové vlastnosti

Technické specifikace

Parametr Hodnota pro TL1500  Hodnoty pro CW700 
Typ SD900 SD900
Nosnost při vykládce 1 m (1. vrstva) 900 kg  700 kg
Nosnost při vykládce 1,5 m (1. vrstva) 800 kg  700 kg
Nosnost při vykládce 2 m (1. vrstva) 600 kg   600 kg
Rychlost zdvihu 1,2 m/min  2,2 m/min
Průměr lana Ø 8 mm 6 mm
Uložení lana horní vrstva 33 m  40 m
Hmotnost bez navijáku 49 kg  49 kg
Hmotnost navijáku 27 kg  14 kg
Materiál Lakovaná ocel Lakovaná ocel
Otočný rozsah 360° 360°
Maximální vykládka 2 m 2 m

Aplikace

Výhody

Bezpečnost

Typ, nosnost, rozsah, naviják

  • SD900, 900/600kg, 1-2m, pozink, CW700
  • SD900, 700/600kg, 1-2m, pozink, TL1500
Zobrazit produkt